Hiện nay trên thị trường căn hộ chung cư tại Hà Nội, hiếm có dự án nào thiết kế loại căn hộ 4 phòng ngủ như dự án Florence Mỹ Đình, đây là loại căn hộ được ưa chuộng đối với các hộ gia đình ở chung nhiều thế hệ với nhau giúp gắn kết các thành viên lại.
Florence Mỹ Đình sở hữu một không gian sống xanh hoàn hảo với căn hộ chất lượng từ hai đến bốn phòng ngủ, môi trường thông thoáng, giao thông thuận tiện, gần trường học Việt Úc, trường Lê Quý Đôn, trường Đoàn Thị Điểm, trung tâm thương mại The Garden, siêu thị FiviMart, sân vận động Mỹ Đình, cung điền kinh Hà Nội... Giá cả phù hợp là ưu tiên hàng đầu của những gia đình trẻ nơi đô thị công tác tại các quận Cầu Giấy, Đống Đa, Từ Liêm.
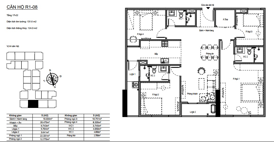
Căn hộ 4 phòng ngủ tại chung cư Florence thiết kế với 2 lại diện tích là 101m2 và 124m2:

Căn hộ 101m2 trên mặt bằng từ tầng 4 đến tầng 24 có 2 căn hộ là căn R1-05 và R1-09 trên một mặt sàn.

Căn hộ 124m2 trên mặt bằng từ tầng 17 đến tầng 24 có 4 căn hộ là căn R1-06, R1-08, R2-06 và R2-08.
Nằm trên trục đường Trần Hữu Dực, Mỹ Đình, Nam Từ Liêm, vẻ đẹp của Florence Mỹ Đình chạm tới tận cùng cảm xúc với phong cách kiến trúc cổ điển tạo nên từ giai điệu âm hưởng cuộc sống. Mật độ xây dựng nơi đây chỉ chiếm 30%, trong khi diện tích cảnh quan và tiện ích nội khu lên đến 10.000m2 đã giúp cho chung cư Florence trở thành điểm sáng trong phân khúc căn hộ cao cấp tại khu vực phía Tây Hà Nội. Tại Florence Mỹ Đình, khách hàng không chỉ sở hữu một ngôi nhà mơ ước còn thụ hưởng hệ thống tiện ích cao cấp như vườn đi dạo với hàng hoa Diên Vỹ, biểu tượng của thành phố Florence, Italia, sân cát cho trẻ em, hồ bơi trẻ em và hồ bơi người lớn, vườn đi dạo trên cao. Tính đến thời điểm hiện tại, dự án Florence Mỹ Đình đang hoàn thiện tường ngăn bên trong căn hộ và triển khai đi đường ống kỹ thuận, đảm bảo tiến độ bàn giao trước tiến độ 2 tháng vào tháng 8 năm 2019.
Thông tin chi tiết về giá bán, thiết kế căn hộ tại dự án, quý khách hàng vui lòng liên hệ Hotline: 0989.446.826

Bùi Ngọc Điền - GĐKD
Điện thoại: 033.334.6688
Profile: Bùi Ngọc Điền